Kosten
Nettokaltmiete
360,00 €
Heizkosten
85,00 €
Nebenkosten
40,00 €
Kaltwasser
25,00 €
Gesamtmiete
510,00 €
Kaution
3-fache Kaltmiete
Allgemeine Infos
Wohnungs-Nr.
1677/14/5
Etage
3.OG
Raumzahl
2
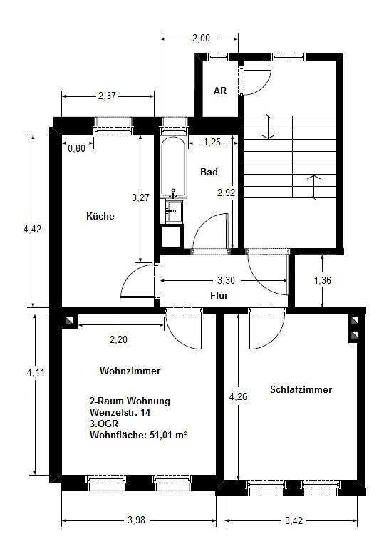
Wohnfläche
51,01 m²
frei ab
01.11.2025
Objektbeschreibung
Wohngebiet
Ostviertel
Balkon
Dusche
Badewanne
Keller
Aufzug
Bodenkammer
Heizungsart
Gas
Zustand
befriedigend - ausreichend
Energieausweisdaten
Gebäudebaujahr
1890
Energieverbrauch enthält Warmwasser.
Beschreibung
Die liebevoll sanierte Wohnung befindet sich in der dritten Etage des Hauses Wenzelstr. 14. Das Objekt verfügt über zwei attraktive Zimmer. Die beiden Wohnräume, die Küche und der Flur sind mit PVC-Belag in Holzoptik ausgestattet. Das Tageslicht-Wannenbad ist komplett gefliest. Der Waschmaschinenplatz befindet sich praktischer Weise mit im Badezimmer. Beachten Sie auch den Garten, in dem es sich wunderbar vom Alltag erholen lässt. Praktischerweise gibt es auch einen Kellerraum. Hier finden Sie genügend Stauraum zur Einlagerung von Gegenständen.
Wohngebiet
WOHNEN IM ALTENBURGER OSTVIERTEL
Das Altenburger Ostviertel liegt östlich der Innenstadt und erstreckt sich vom Bahnhof über den Schloßpark bis hin zur Münsaer Straße. Immer in Reichweite sind Einkaufszentren, Naherholungsorte, zahlreiche Arztpraxen und Physiotherapeuten. Vom öffentlichen Nahverkehr ist das Viertel bestens erschlossen. Bahn- und Busbahnhof befinden sich in der Nähe und zum Zentrum ist es auch zu Fuß nicht weit. Die SWG besitzt im Ostviertel wunderschöne Wohnhäuser aus der Gründerzeit und top sanierte Mehrfamilienhäuser aus den 60er Jahren.
Sonstiges
Für Fragen steht Ihnen unser Vermietungsteam gern zur Verfügung:
Sandra Fischbach: 03447 591-103
Andrea Dölz: 03447 591-112
Sandra Fischbach: 03447 591-103
Andrea Dölz: 03447 591-112



